Toggle navigation
產品中心
集裝箱房
固控設備
泥漿固控系統
固廢無害化處理
容器設備
鋼結構工程
其他設備及備件
野營房
鉆探工程用房
特種集裝箱房
電力房
模塊化集成房屋
軍用方艙
車載式營房
立式甩干機
離心機
振動篩
真空除氣器
除泥器
泥漿攪拌器
砂泵
剪切泵
液下泵
泥液分離器
射流混漿裝置
泥漿冷卻塔
油氣鉆井凈化系統
鉆井鉆泥凈化系統
河道污泥分離系統
HDD泥漿回收系...
非開挖泥漿處理
油基泥漿廢棄物處...
水基泥漿廢棄物處...
脫水離心機單元
高頻振動篩單元
螺旋輸送機
油罐
水罐
鋼結構房屋
鉆桿盒、爬犁、巖...
管排架
鋼木基礎
設備主撬
關于我們
應用行業
鉆井施工領域
環保工程領域
建筑領域
電力領域
城市配套
石油天然氣鉆修機...
營地建設
鉆井固控系統
泥漿不落地處理
油污泥分離系統
土壤淋洗修復處理
盾構穿越泥水處理
河道清淤
鋼結構材料房
打包式箱房
光伏電力集裝箱
志愿者服務站
消防救援站
案例中心
集裝箱房
固控系統
鋼結構房屋
野營房營地建設
鉆探工程營房
車載營房項目
模塊化集成房
模塊化消防站
固控設備
泥漿系統
鋼結構
新聞中心
企業新聞
行業新聞
聯系我們
公司地址
我要留言
招賢納士
CN
CN
EN
RU
您當前所在位置:
首頁
>
應用行業
>
環保工程領域
>
泥漿不落地處理
Toggle navigation
應用行業
鉆井施工領域
石油天然氣鉆修機成套
營地建設
鉆井固控系統
環保工程領域
泥漿不落地處理
油污泥分離系統
土壤淋洗修復處理
盾構穿越泥水處理
河道清淤
建筑領域
鋼結構材料房
打包式箱房
電力領域
光伏電力集裝箱
城市配套
志愿者服務站
消防救援站
點擊詢價
您還可能感興趣的產品:
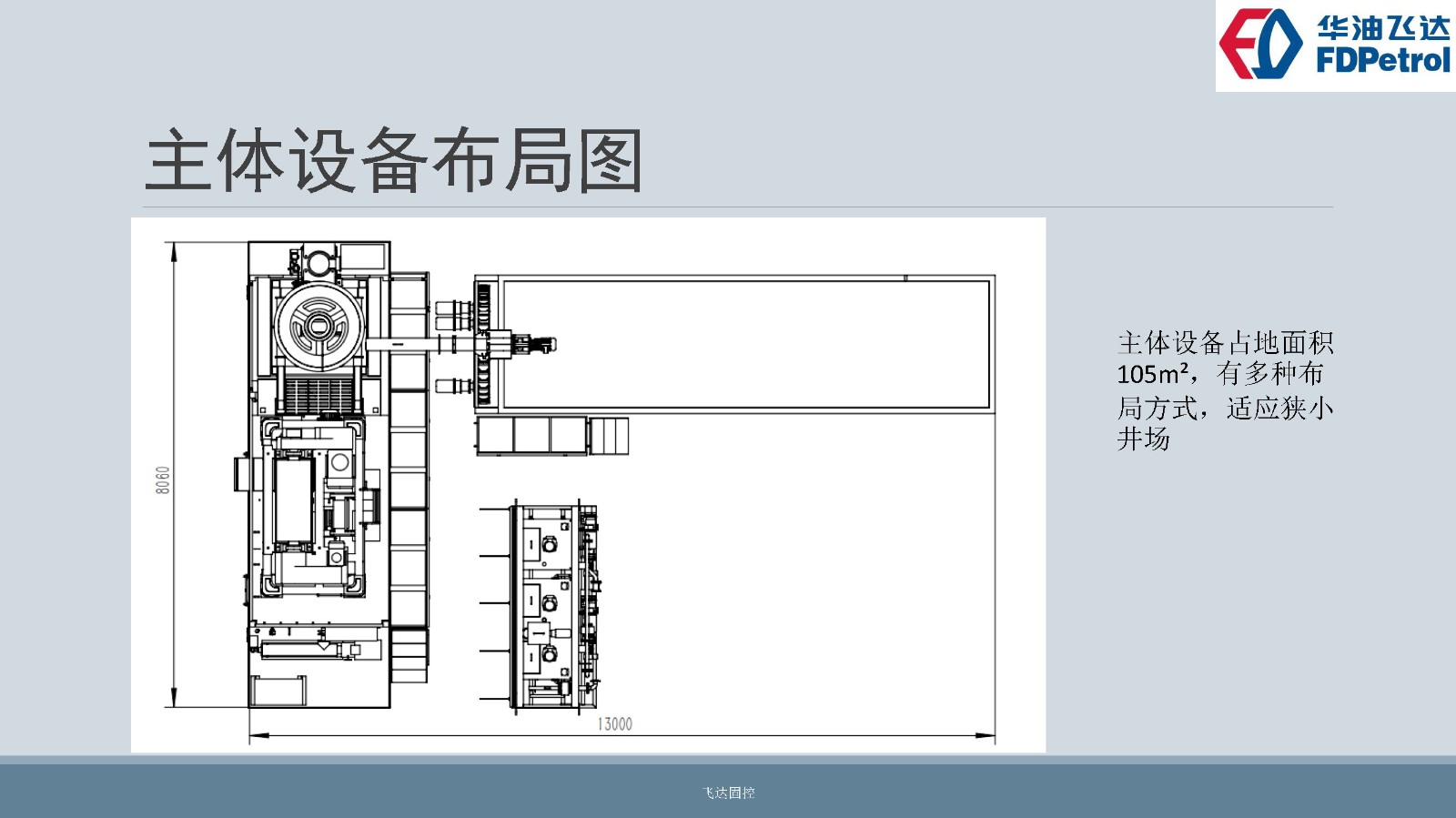
泥漿不落地處理系統
聯
系
我
們
電話:400-001-8976
郵箱:pengwl@fdpetrol.com
地址:滄州經濟開發區新華園區
人人爽人人爽